亿德体育·(中国)官方网站

ELEVATOR DOOR SYSTEM电梯门系统

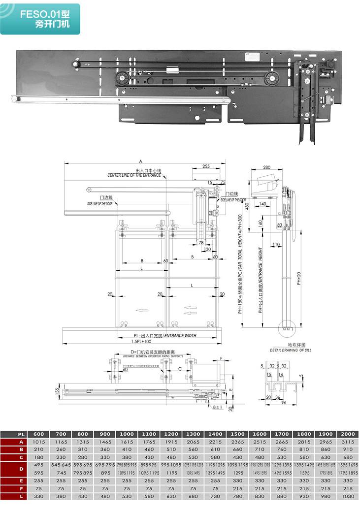
FESO.01型旁开门机